7-izbový dom Vrakuňa – bývanie aj podnikanie v jednom
O nehnuteľnosti
Veľkorysý 7-izbový rodinný dom na tichej slepej ulici vo Vrakuni — priestor na bývanie aj podnikanie.
Úžitková plocha 230 m² + suterén 115 m², pozemok 585 m². Zastavaná plocha 151 m². Samostatne stojaci tehlový dom, kolaudácia 1992, rekonštrukcia 2004, zateplenie 2018.
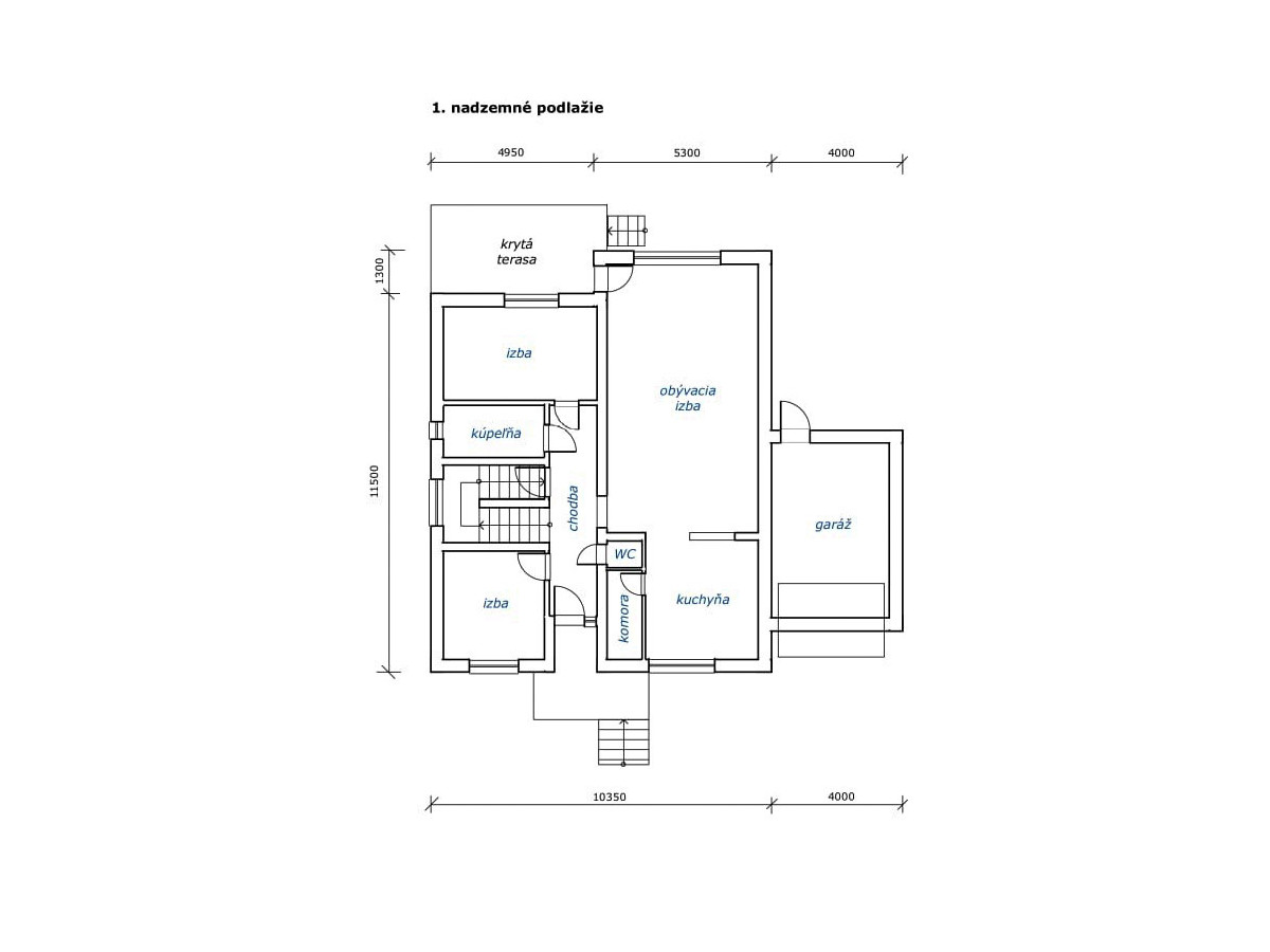
Suterén: garáž (aktuálne herňa), technická miestnosť, kúpeľňa, WC, knižnica, sklad, hobby miestnosť, pracovňa. Prízemie: vstupná hala, obývačka s krbom, kuchyňa so špajzou, jedáleň s výstupom na terasu, izba, šatník, kúpeľňa s rohovou vaňou a bidetom, WC. Poschodie: 2 veľké izby, 1 izba s balkónom, 1 menšia izba, kúpeľňa.
Výbava: 2 garáže, klimatizácia, krb, vonkajšie rolety, plastové okná + strešné FAKRO. Kúrenie: ústredné — plynový kotol. IS: elektrina (230 V + 380 V), plyn, kanalizácia, mestská voda, internet. Mesačné náklady cca 250 €.
Lokalita: tichá slepá ulica pri Vrakunskom lesoparku. Škôlky, školy, potraviny, pošta, reštaurácie v pešej dostupnosti. Rýchle napojenie na centrum aj diaľničný obchvat.
Znalecký posudok: 600 000 € (12/2023). Predáva sa výrazne pod znaleckou hodnotou. Vhodné na dvojgeneračné bývanie, sídlo firmy alebo investíciu.
Kontaktujte nás pre obhliadku.
Parametre a vlastnosti
| Ulica | Arménska 2 |
| Obec | Bratislava-Vrakuňa |
| Okres | Bratislava II |
| Kraj | Bratislavský kraj |
| Druh | Domy |
| Typ | Predaj |
| Typ domu | Rodinný dom |
| Vlastníctvo | osobné |
| Plocha pozemku | 585 m |
| Typ zeme | rovina |
| Úžitková plocha | 345 m |
| Zastavaná plocha | 151 m |
| Stav | čiastočne prerobený |
| Počet izieb | 7 |
| Energetická náročnosť budovy | Klasické materiály |
| Typ výbavy | čiastočne vybavený |
| Loggia | ✓ |
| Terasa | ✓ |
| Garáž | ✓ |
| Pivnica | ✓ |
| Špajza | ✓ |
| Sklad | ✓ |
| Dielňa | ✓ |
| Rok výstavby | 1993 |
| Rok poslednej rekonštrukcie | 2018 |
| Plocha loggie | 1 m |
| Počet logií | 1 |
| Terasa plocha | 1 m |
| Počet terás | 1 |
| Počet garáží | 2 |
| Pivnica plocha | 115 m |
| Počet pivníc | 1 |
| Inžinierske siete | ✓ |
| Voda | ✓ |
| Elektrika | ✓ |
| Plyn | ✓ |
| Kanalizácia | ✓ |
| Voda - na pozemku | ✓ |
| Elektrika - na pozemku | ✓ |
| Elektrika - na pozemku - 230 V | ✓ |
| Elektrika - na pozemku - 380 V | ✓ |
| Plyn - na pozemku | ✓ |
| Vykurovanie - centrálne | ✓ |
| Telefón | ✓ |
| Internet | ✓ |
| Satelit | ✓ |
| Optická sieť | ✓ |
| Iné | ✓ |





































